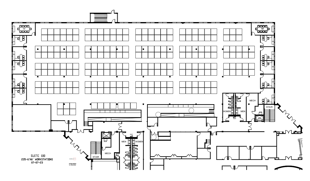
2208 HIGHWAY 121 SUITE 100 BEDFORD, TX
(Scheduled 2.2 Excluded Item NEW #17/ under 200 Addon)
BPO Setting - Med Density:
235 Cubicles /Chairs / Conference / Training
PROJECT COST:
$245,000
(Scheduled 2.2 Excluded Item NEW #17/ under 200 Addon)
BPO Setting - Med Density:
235 Cubicles /Chairs / Conference / Training
PROJECT COST:
$245,000